2 Pieces Confortables, Skis Aux Pieds, Proche Commerces - Fr-1-182A-1
תצוגה מקדימה בלבד - ראה את כל תמונות המלון
ראה את כל 26 התמונות 1 /
26
8.0
חות דעת 1
האפשרויות הטובות ביותר לתאריכי הנסיעה שלך
להציג את המלון במפה
2 Pieces Confortables, Skis Aux Pieds, Proche Commerces - Fr-1-182A-1
3 ז'רדן אלפין זה כ-3.5 ק"מ מהנכס, בזמן שסוליר זה כ-4 ק"מ משם.
הדירה ממוקמת בסביבות ה-20 דקות הליכה על מרכז העיר קורשבל. La Taiga מפנק את האורחים עם מאכלים Franse ונמצא בסביבות ה-650 מטר משם.
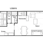
דירה זו מזמינה אורחים ל1 חדרי שינה. הנכס כולל 1 חדרי אמבטיה.
נכס זה כולל מטבח מצויד. הדירה שוכן במרחק של 100 ק"מ על שדה תעופה אנסי-מייתת. הנכס מציע מחסן ציוד סקי לחובבי סקי.
עוד +
פחות -
נא להמתין, אנחנו בודקים חדרים זמינים בשבילך.
מחפש מלונות
מתקנים
השרותים הפופולריים ביותר
- ידידותי לילדים
- ללא חיות מחמד
מתקנים
כללי:
- ללא-עישון בכל החללים הפרטיים והציבוריים
- אין להביא חיות מחמד
- חדר אחסון
- מעלית
ארוחות:
- קומקום
- כלי מטבח
ספורט:
- סקי
מאפייני חדר:
- שולחן אוכל
- מיטת תינוקות/ עריסות
מדיניות
צ'ק-אין: מ17:00 עד 19:00
צ'ק-אוט: מ08:00 עד 10:00
מפה
אטרקציות מקומיות
ציוני דרך
- לה 3 וואליס (3.7 ק"מ)
נמלי תעופה
- נמל התעופה אנסי-מייתת (98 ק"מ)
חוות דעת
כתוב ביקורת
100% ביקורות מאומתות
8 /10
שאלות נפוצות
- ❓כמה רחוק דירה הזו ממרכז העיר?מרכז העיר נמצא במרחק של 20 דקות הליכה מדירה הזו.
- ❓מהי עלות השהייה בדירה הזו?מחיר השכרת דירה הזו הוא 423 €.
- ❓מהם מקומות האוכל הטובים ליד דירה הזו?מסעדות ליד דירה הזו כוללות La Taiga וLe Strato.