2 Pieces Confortables, Skis Aux Pieds, Proche Commerces - Fr-1-182A-1 Courchevel
2 Pieces Confortables, Skis Aux Pieds, Proche Commerces - Fr-1-182A-1
Pouze náhled – zobrazte všechny fotografie hotelu.
Zobrazit všech 26 fotografií 1 /
26
8.0
1 recenzi
Nejlepší možnosti pro vaše termíny cesty
Zobrazit hotel na mapě
2 Pieces Confortables, Skis Aux Pieds, Proche Commerces - Fr-1-182A-1
Hosté mohou navštívit Lanovka Dent de Burgin, 3 km daleko nebo Lanovka Mickey, 4 km od ubytování.
Toto místo se nachází 20 minut chůze do centra města Courchevel. Bar La Taiga se nachází 650 metrů od apartmánu.
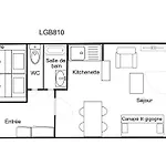
Tento apartmán zve hosty do 1 ložnic. Apartmán má 1 koupelen.
V apartmánu je k dispozici i kompletní kuchyně. Hosté jsou ubytováni ve vzdálenosti 100 km od letiště Meythet. Ubytování nabízí úschovnu lyží pro milovníky lyžování.
Více +
Méně -
Čekejte prosím, ověřujeme pro vás volné pokoje.
Vyhledávání hotelů
Vybavení
Vybavení Pokoje
- Vhodný pro děti
- Zvířata nejsou povolena
Vybavení
Všeobecný:
- Zákaz kouření na místě
- Domácí zvířata nejsou povolena
- Úschovna lyží
- Výtah
Večeře:
- Rychlovarná konvice
- Kuchyňské potřeby
Sport a zábava:
- Lyžování
Vybavení pokoje:
- Jídelní stůl
- Dětské postýlky
Politika
Přihlášení: od 17:00 do 19:00
Odhlášení: od 08:00 do 10:00
Mapa
Místní zajímavosti
Památky
- Les 3 Vallées (3,7 km)
Letiště
- Meythet Airport (98 km)
Recenze
Napište recenzi
100% ověřené recenze
8 /10
Často kladené otázky
- ❓Jak daleko je toto ubytování typu apartmán od centra města?Centrum města je 20 minut chůze od toto ubytování typu apartmán.
- ❓Jaké jsou dobré restaurace v okolí toto ubytování typu apartmán?Mezi restaurace v blízkosti toto ubytování typu apartmán patří La Taiga a Le Strato.